
Revamped Bedroom Cyncoed, Cardiff
Studio Speck was tasked with transforming an unused bedroom in a family home. Our client loved colour, and pops of teal ran throughout the home.
​
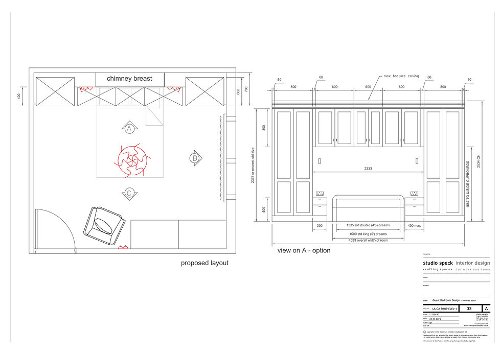
We discussed the brief and created plans, visuals, and colour elevations to communicate the desired look and design effectively. Once again, Intermech and their talented team stripped out the ceiling, flooring and all decs and put up the new ceiling. We had some local contractors, Jay from Buchanan Property care, who transformed the room with new flooring, bespoke cabinetry, new coving and skirting and Andy of Cosset painting and decorating, who made good the walls and decorated to achieve a brand new look to this unused room. Lastly, the talents of Lewis and Mark of L&M Electrical added new electrics for a 'hotel' look on the sockets and switches.
​
Project included:
strip out all existing decorations
new ceiling
new flooring
Bespoke storage
lighting & electrics
painting & decorating
Bespoke window blinds
new coving and skirting
​
Design time: 2 weeks Project time: 3/4 weeks



family room, llanishen

design concept finishes

family room, llanishen









